Dedicated to sustainable,
high performance building

La Pêche Town Hall


Integrated design approach makes a beacon of sustainability

By Dominique Laroche

La Pêche new town hall is a two-storey, highly energy-efficient building with a very low embodied and operational carbon footprint. It is also the first institutional building in Quebec to apply for Passivhaus certification. Located at the gateway to this municipality of 8,600 inhabitants, it fronts onto provincial highway 366, just across from chemin du Lac Philippe, one of the main access points to Gatineau Park north of Ottawa.

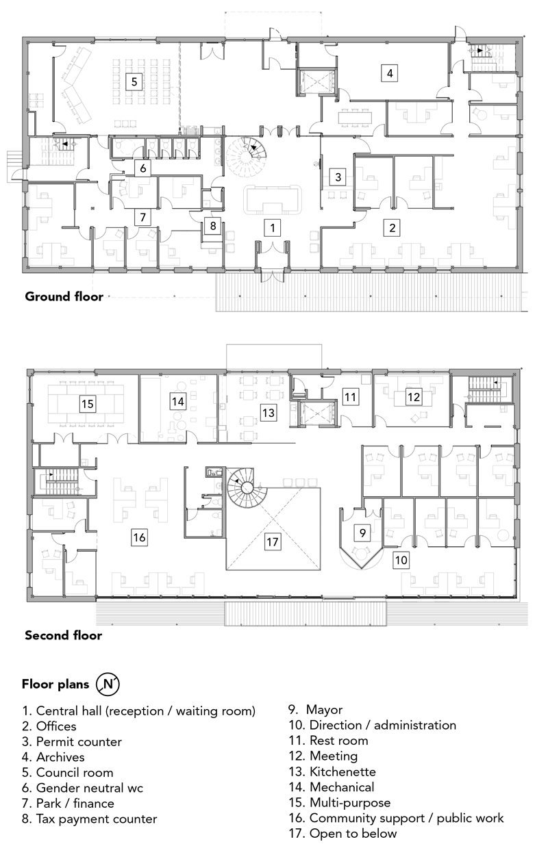
The project accommodates a traditional town hall program; including a lobby and reception area, tax payment counter, permit consultation counter, council chamber, multi-purpose room, meeting rooms, kitchenette and lunch area, rest area, as well as a combination of closed and open-plan offices. The building has a floor area of 1,417m2.

The large south-facing facade, designed according to passive solar principles, offers a panoramic view of the Gatineau Park hills. The large areas of glazing are supported by a structural wood curtain wall system whose rhythm and bracing elements echo the traditional structures of the region's covered bridges. In the evening, the warmth of the CLT roof and the details of the all-wood curtain wall are enhanced by a combination of direct and indirect lighting. 

The design approach for the town hall was based on three key strategies:

1. It is made almost entirely of wood, a local resource that has historically strengthened the region's economy. The structure features glulam beams and columns, and cross-laminated timber (CLT) floors and roofs. All interior partitions and exterior wall assemblies are of light timber frame construction. Wall insulation is a combination of blown-in cellulose and wood-fibre panels.

Exterior siding is eastern cedar installed on wood furring. Windows and doors are wood with aluminum cladding. Add in all the interior wood finishes and the building is thus a major carbon sink.

2. It is designed to the international Passivhaus energy-efficiency standard, which saves around 65% of heating and cooling energy compared to NECB 2020. It is the first institutional building in Quebec to apply for Passivhaus certification.  Achieving the standard depends on a number of factors, the main ones being the building's simple form and advantageous envelope to floor area ratio, superior wall and roof insulation, precise positioning of windows according to orientation, exceptional air tightness – validated by mandatory blower door tests – and key architectural components certified by the German Passivhaus Institute.

  • In Quebec's climate, the Passivhaus approach calls for careful regulation of solar radiation inside the building. At the La Pêche town hall, a double south-facing brise soleil was precisely designed to cut solar radiation in summer and to reduce air-conditioning needs drastically while maximizing solar gain in winter. In fact, the building's main source of heating during the coldest months is direct solar radiation.
  • Project credits
  • Architect  BGLA architecture + design urbain
  • Structural engineer  Latéral
  • Mechanical / electrical engineer Pageau Morel 
  • Construction Ed Brunet
  • Photos  Stéphane Brügger

Dominique Laroche is senior principal associate at BGLA architecture + design urbain.

SUBSCRIBE TO THE DIGITAL OR PRINT ISSUE OF SABMAGAZINE FOR THE FULL VERSION OF THIS ARTICLE.

 

Leave a Reply

Your email address will not be published. Required fields are marked *